Sonance Fire-Rated Deep Backcan, stk.
Produktnummer: 10302439
EAN: 041093928086
Lagerbeholdning:
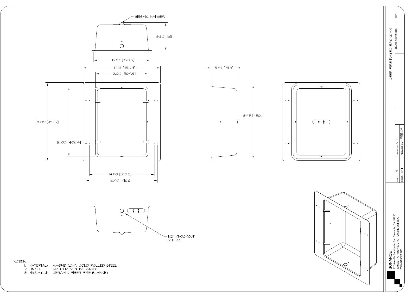
Fire-Rated Deep Backcan for In-Ceiling VP (Round & Square)
FIRE RATED ASSEMBLY MUST USE FLEX BRACKETS.
Provides 1-hour rating in accordance with ASTM E814-06, ASTM E119, UL263, NFPA251,
CN/ULC S 101 when installed as part of a gypsum board wall assembly with an appropriate Sonance Flex Bracket. WHI Design Listing DII/PH60-09. Includes ceramic fiber insulation and Snap2it wire clamps. Painted steel construction.
